Porzione di bifamiliare in vendita

Fiumicino, Via Storo
€ 365.000
4 locali 4 locali
157 Mq 157 Mq
2 bagni 2 bagni

Porzione di bifamiliare in vendita

Fiumicino, Via Storo

Descrizione annuncio

Villetta bifamiliare - Isola Sacra, Fiumicino

Fiumicino, località Isola Sacra più precisamente in via Storo avete la grande possibilità di acquistare questa splendida porzione di bifamiliare di ben 150 mq interni e 350 mq di corte esterna.
La proprietà è ben accessibile sia tramite ingresso pedonale che tramite carriaio dove possiamo far transitare una o più autovetture grazie al grande giardino di ben 350 mq che abbraccia l'intera proprietà abitativa.
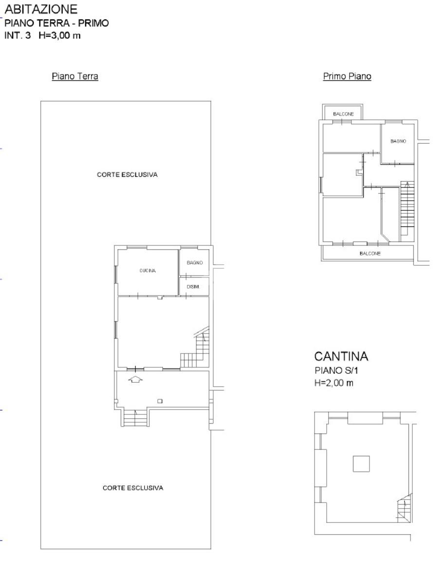
L'immobile si compone di due livelli completamente fuori terra e un terzo livello interrato destinato a una zona polifunzionale essendo un grande ambiente finestrato di 50 mq. Il primo livello che incontriamo è composto da un comodo patio su cui troviamo l'accesso vero e proprio all'abitazione, infatti, oltrepassato il portoncino blindato, ci troviamo davanti a una porta da cui è possibile accedere alla grande cucina abitabile, al disimpegno, al primo bagno dotato di doccia, alle due scale di collegamento e agli altri due livelli della casa: il livello 1 e quello -1; sempre in questa parte della casa troviamo il termo camino che è il cuore energetico pulsante dell'abitazione capace di regalarci un ottimo effetto di arredo e di trasmettere una dolce calore durante gli inverni.
Il primo livello è posto al primo piano dell'abitazione e vi si accede tramite una scalinata interna che, una volta percorsa, porta nel disimpegno della zona notte costituita da 3 camere da letto di cui la matrimoniale dotata di un'ampia cabina armadio e collegata esternamente con un ampio balcone, poi troviamo le due camere singole di cui una dotata anch'essa di balcone di servizio ed infine troviamo l'ampio bagno con vasca.
Il livello seminterrato risulta essere un gran punto di forza notevole per questa tipologia di abitazione, infatti, grazie all'ottima costituzione della struttura e alla sua altezza di ben 2 metri, risulta perfettamente vivivibile e adatto a essere usato come locale lavanderia, sala musica, locale di sgombero o altro .
L'enorme giardino che circonda questa proprietà è un altro grande punto di forza poichè può essere utilizzato in vari modi, sia per ospitare più di un'autovettura ma anche per creare un salotto esterno dove vivere momenti indimenticabili all'aria aperta con i vostri familiari ed amici.

Mostra tutto

Nelle vicinanze

Trasporto pubblico Trasporto pubblico
Lido Nord
Lido Nord
2,6 Km
Appagliatore/Martinica
Appagliatore/Martinica
1,8 Km
Martinica/Tortuga
Martinica/Tortuga
1,9 Km
Ricariche auto elettriche Ricariche auto elettriche
Municipio di Fiumicino | EnelX
2,9 Km
Scuole Scuole
Scuola media Giuseppe Parini
1,9 Km
Scuole
2,0 Km
Scuola parificata "Ugo Foscolo"
2,3 Km
Liceo Scientifico Statale Antonio Labriola
2,7 Km
Giovanni Paolo II
2,7 Km
Farmacia Farmacia
Farmacia
1,7 Km
Farmacia delle Azzorre
2,0 Km
Farmacia dr. Oddi
2,1 Km
Farmacia Giancarlo Matteazzi
2,3 Km
Parafarmacia
2,5 Km
Ospedali Ospedali
Distretto di salute mentale A.S.L. Roma D
2,9 Km
Supermercati Supermercati
Todis
670 m
Conad
930 m
Supermercati
1,6 Km
Panorama
2,0 Km
Effepiù
2,0 Km
Negozi Negozi
Il mio panettiere
2,1 Km
Panificio Fratelli Mastio
2,2 Km
No regress
2,2 Km
La Tenda dei Popoli
2,4 Km
Forno Causio
2,4 Km
Bar Bar
Bar
2,4 Km
Millennium
2,7 Km
Caffè Paradise
2,7 Km
Dual Caffè
2,8 Km
Bar Dany
2,9 Km
Ristoranti Ristoranti
Ristoaereo
620 m
Chi cerca trova
1,0 Km
Il Glicine - Iniziative Nautiche
1,3 Km
Lady Rose
1,6 Km
Fort Apache
1,7 Km
Mostra tutto

Caratteristiche

Rif.:
61196460
Piano:
Su più livelli di 2
Totale piani:
2
Posti auto:
1
Balconi:
2
Camere da letto:
3
Mostra tutto
Prezzo Prezzo
€ 365.000
Rata mutuo Rata mutuo
€ 1.726 / mese
Proponi il tuo prezzoProponi il tuo prezzo

Altre caratteristiche

Classe Energetica

G
G
G
G
G
G
G
G
G
EP globale non rinnovabile:
298.00 kW h/m² anno
EP globale rinnovabile:
298.00 kW h/m² anno
EP invernale del fabbricato:
EP estiva del fabbricato:
Anno di costruzione:
1990
Riscaldamento:
Autonomo
Tipo impianto:
A stufa
Tipo alimentazione:
Metano

Ti interessa visionare l'immobile?

Fissa un appuntamento  Fissa un appuntamento

Richiedi informazioni

Clicca su Leggi per aprire l'informativa
* Questi campi sono obbligatori

Calcola il tuo mutuo

Semplice e senza impegno
Anticipo

( % )
Mutuo

( % )

pochi semplici passi

inserisci i tuoi dati
Questionario completato
Grazie per aver richiesto un appuntamento senza impegno con un nostro Consulente del Credito e Assicurativo.

Hai inserito correttamente tutti i dati necessari e a breve riceverai una e-mail con un link da convalidare per inviare i tuoi dati.
Affiliato
Immobiliare Ostia 2015 Srls
Via Delle Gondole, 86 00121 Roma (RM)

Il nostro staff


  • Stefano Bruscarino
    Affiliato

  • Angela Grosu
    Coordinatrice
Via Delle Gondole, 86 00121 Roma (RM)
Zona: Ostia Centro Levante
Mostra su mappa
Orari: da lunedì a venerdì dalle 09.00 alle 13.00 e dalle 16.00 alle 19.00 sabato dalle 09.00 alle 13.00
Affiliato
Immobiliare Ostia 2015 Srls
Via Delle Gondole, 86 00121 Roma (RM)

2026 Tecnocasa Franchising S.p.A. - P. IVA 08365160152 - Via Monte Bianco 60/A 20089 Rozzano (MI). Ogni agenzia ha un proprio titolare ed è autonoma. Privacy policy | Policy utilizzo | Cookie policy